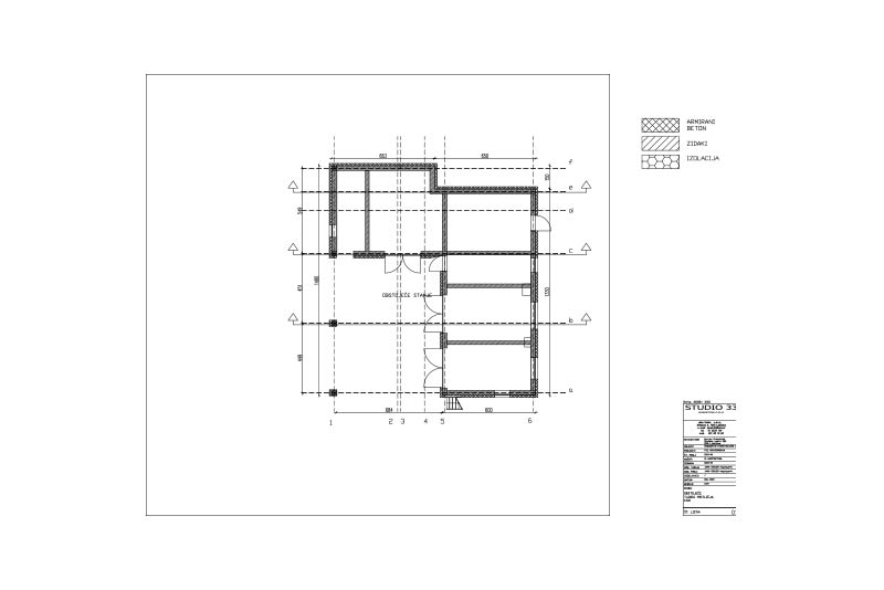
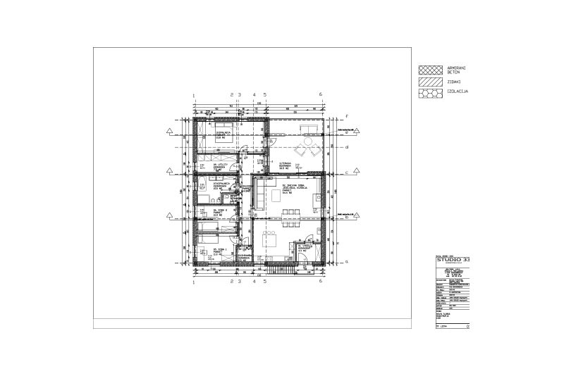
Stanovanjski objekti
November 12, 2020
By Jaka Sokler
Session expired
Please log in again. The login page will open in a new tab. After logging in you can close it and return to this page.